688 800.00 

Elegancja przestrzeni w historycznym otoczeniu

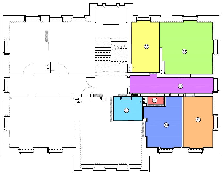
Prezentujemy wyjątkowy apartament o powierzchni 86,10 m², usytuowany na pierwszym piętrze odrestaurowanego pałacu – miejsca, w którym historia spotyka się z nowoczesnym komfortem życia.

Wnętrze zostało zaprojektowane z myślą o funkcjonalności i codziennym komforcie mieszkańców. Przestronny hol, naturalnie doświetlony światłem dziennym, wprowadza do części dziennej apartamentu. Salon, z ekspozycją na wschód i południe, harmonijnie łączy się z kuchnią i jadalnią, tworząc otwartą, sprzyjającą wspólnemu spędzaniu czasu przestrzeń. Jednocześnie układ pomieszczeń pozwala na subtelne oddzielenie strefy wypoczynkowej od części kuchennej.

Strefa prywatna obejmuje dwie komfortowe, ustawne sypialnie z oknami od strony zachodniej, zapewniające spokój i optymalne warunki do wypoczynku. Całość uzupełnia łazienka oraz praktyczne pomieszczenie gospodarcze dostępne z holu, które doskonale sprawdzi się jako schowek lub funkcjonalna spiżarnia.

 

Otoczenie i lokalizacja

Nieruchomość położona jest w spokojnej, zielonej części Lubina – Miroszowicach, z dogodnym dostępem do infrastruktury miejskiej. W bezpośrednim sąsiedztwie znajdują się przystanki komunikacji miejskiej, sklepy oraz tereny rekreacyjne.

W krótkim czasie można dotrzeć do centrum miasta, galerii handlowej, obiektów sportowych czy Parku Wrocławskiego. Lokalizacja zapewnia również wygodne połączenia kolejowe z Wrocławiem oraz dogodny dojazd do lotniska.

 

Inwestycja – unikatowy kompleks pałacowy

Apartament stanowi część prestiżowej inwestycji obejmującej rewitalizację historycznej rezydencji, której początki sięgają XIII wieku. Projekt zakłada stworzenie spójnego, kameralnego kompleksu o charakterze dworskim, realizowanego etapowo.

Obecnie oferowane lokale znajdują się w odrestaurowanym budynku pałacu – to pierwszy etap inwestycji, w ramach którego powstało zaledwie sześć przestronnych apartamentów o powierzchniach od 80 do 100 m². Kolejne etapy obejmują odbudowę budynku dawnego zarządcy oraz realizację nowych zabudowań mieszkalnych, utrzymanych w stylistyce całego założenia.

 

Starannie przeprowadzona rewitalizacja

Renowacja pałacu została zrealizowana z najwyższą dbałością o detale architektoniczne oraz pod ścisłym nadzorem konserwatorskim. Odtworzono historyczną elewację z zachowaniem oryginalnych technologii i materiałów, przywracając budynkowi jego dawny charakter.

Jednocześnie obiekt przeszedł kompleksową modernizację konstrukcyjną i instalacyjną – od wymiany dachu i stropów, po nowoczesne systemy izolacyjne i wykończeniowe – co gwarantuje trwałość oraz wysoki standard użytkowania.

 

Nowoczesność i komfort

Mimo zabytkowego charakteru, apartamenty wyposażono w rozwiązania odpowiadające współczesnym wymaganiom:

  • indywidualne, w pełni sterowane ogrzewanie podłogowe,
  • system rekuperacji zapewniający stały dopływ świeżego powietrza,
  • nowoczesne podgrzewacze wody z możliwością programowania,
  • systemy zdalnego sterowania oraz wideo-domofony,
  • przygotowanie pod instalacje fotowoltaiczne.

Całość tworzy przestrzeń komfortową, energooszczędną i przyjazną środowisku.

 

Apartament nr 3 to propozycja dla osób poszukujących nieruchomości z charakterem – łączącej ponadczasową architekturę z nowoczesnymi rozwiązaniami i kameralną atmosferą.

To miejsce, które oferuje nie tylko komfort mieszkania, ale również wyjątkowy klimat historycznej rezydencji w otoczeniu zieleni.

 

DOSTĘPNE MIESZKANIA

  • Apartament nr 1 – parter | 81,82 m² | cena: 654 560 zł
  • Apartament nr 3 – I piętro | 86,10 m² | cena: 688 800 zł
  • Apartament nr 4 – I piętro | 107,78 m² | cena: 840 684 zł
  • Apartament nr 5 – II piętro | 103,79 m² | cena: 778 425 zł
  • Apartament nr 6 – II piętro | 103,62 m² | cena: 673 530 zł

 

Cena – 688 800 zł

 

Zapraszam do kontaktu w celu uzyskania szczegółowych informacji oraz umówienia się na prezentację nieruchomości. Pomagamy w uzyskaniu finansowania oraz przeprowadzimy przez cały proces zakupu.

Dominika Izbicka, kontakt 573 130 116

dominika.izbicka@escapeestate.pl

Numer licencji zawodowej 29883

 

NOTA PRAWNA: Opis oferty zawarty na stronie internetowej sporządzany jest na podstawie oględzin nieruchomości oraz informacji uzyskanych od właściciela. Może on ulec aktualizacji i nie stanowi oferty w rozumieniu art. 66 i następnych Kodeksu cywilnego

Szczegóły

Cena : 688 800.00 
Rodzaj nieruchomości : Mieszkania
Rodzaj transakcji : Sprzedaż
Status : Aktualne
Powierzchnia : 86,10
Miasto : Miroszowice
Adres : ul. Pałacowa
Numer oferty : 3683

Pomieszczenia

Pokoje : 3
Łazienki : 1
Przewijanie do góry